Заглушка для монтаж. основан. UZD350-3 OBO 7400577 применяется и для защиты, и для визуального скрытия самого монтажного основания. Дело в том, что монтажное основание сохраняет в себе острые кромки, неровности, которые и смотрятся плохо визуально, и могут повредить элементы проводи, кабели и провода. Даже если монтажное основание выполнено по-настоящему неудачно, заглушка для основания может быть установлена на большей высоте, что позволит скрыть все недостатки. Заглушка выполнена из стали и по лучшим немецким технологиям, толщины материала в 4 мм вполне хватает для выдерживания огромных нагрузок.
Характеристики
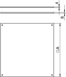
Монтажное отверстие | Нет (без) |
Толщина материала | 4 мм |
Габариты | 0.38 × 0.38 × 0.006 м |
Длина | 383 мм |
Ширина | 383 мм |



















































